Appartamento Lungomare Ostia Roma
La peculiarità dell’intervento è stata quella di sfruttare al meglio l’ottima esposizione dell’appartamento in un edificio fine anni ’50 situato sul Lungomare di Ostia.
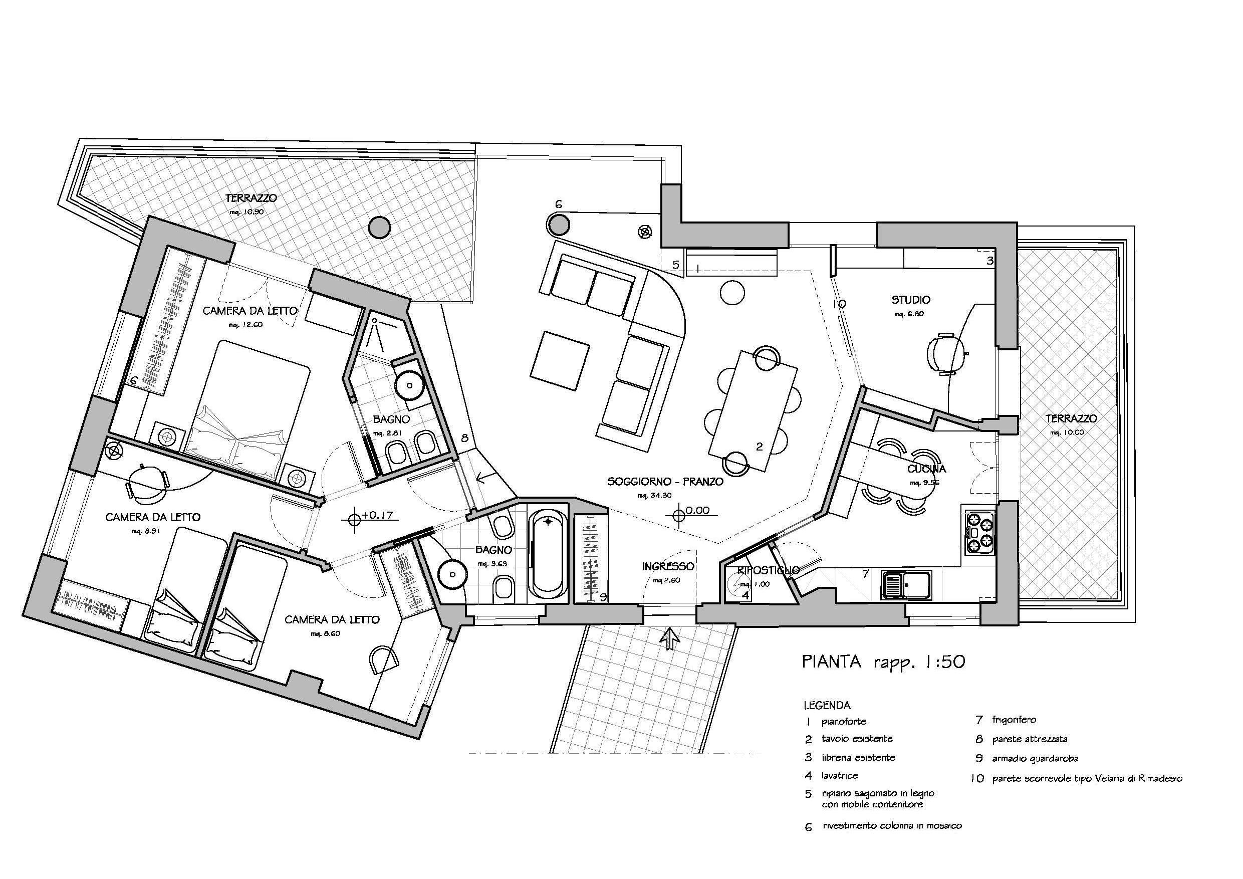
La distribuzione dell’intero appartamento è stata completamente ridisegnata per ottimizzare gli spazi in funzione delle esigenze dei proprietari che avevano la necessità di avere tre camere da letto, due servizi, uno studio e uno spazio per i numerosi libri. Per quest’ultimo punto è stato realizzato un mensolone dalle linee spezzate che percorre il perimetro del soggiorno caratterizzandolo e da una libreria in cartongesso. La realizzazione di pareti con angoli superiori a 90° aumenta il senso di ampiezza e la pianta di forma irregolare con affacci su tutti i punti cardinali rende l’abitazione molto luminosa.
E’ stato dato maggior risalto all’affaccio sul mare verso il tramonto del soggiorno caratterizzato dalla presenza di una colonna in cemento di pianta circolare.
SCHEDA TECNICA
- Tipologia intervento: Appartamento
- Luogo: Lungomare Ostia Lido – Roma
- Committente: Privato
- Anno: 2009
- Dati dimensionali: 120 mq
Via Raffaele De Cosa, 61, Ostia Lido Roma
TEL. 06-5662844 – 06-96046799













