Il Pino Cortona (AR)
Il complesso residenziale denominato “Il Pino” è situato nel comune di Cortona, nei pressi dell’abbazia di Farneta, in cima ad un poggio che domina la Val di Chiana da cui si gode uno splendido panorama, che abbraccia Cortona, Sinalunga, Foiano della Chiana e Castiglion Fiorentino.
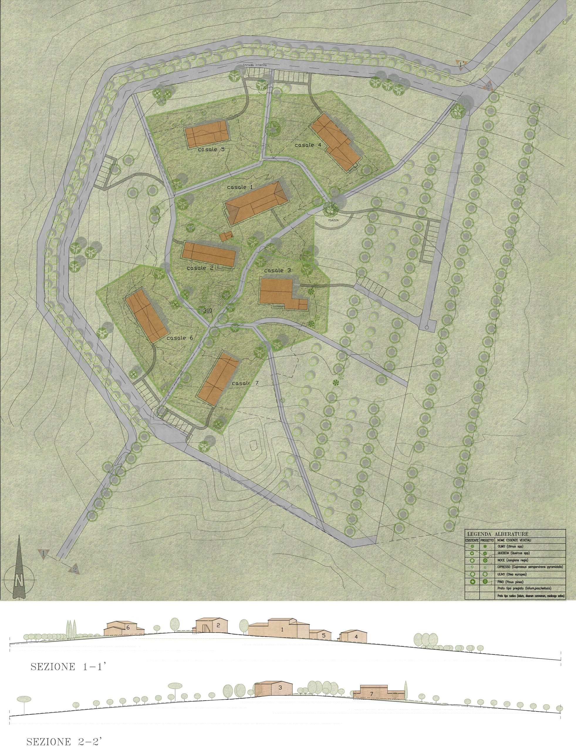
E’ composto da sette edifici, alcuni dei quali risalgono alla fine del 1700, per complessivi 3.000 mq. di superficie, che sono stati ristrutturati con l’uso di materiali locali (pietra serena e mattoni), la maggior parte dei quali provenienti da materiali di recupero dalla demolizione delle superfetazioni e con tecniche costruttive tradizionali.
Il nucleo originale è costituito da tre grandi casali posti al centro dell’area di intervento; la demolizione delle superfetazioni che nei secoli erano state aggiunte ai tre nuclei originali ha consentito il recupero di cubature per realizzare altri quattro casali di minori dimensioni.
L’intervento è stato pensato ed eseguito nel rispetto della tradizione locale. La particolare posizione dell’area (siamo su una collina di fronte a Cortona) ha ispirato una composizione dei casali realizzata in modo da consentire affacci panoramici a tutte le unità immobiliari.
L’inserimento paesaggistico è stato realizzato tramite l’uso di piante tipiche della zona; per mitigare l’impatto con l’ambiente circostante, e garantire una continuità con il paesaggio circostante l’area di intervento non è stata recintata e i singoli lotti di terreno sono stati separati da siepi basse realizzate con macchie di arbusti di specie e varietà differenti.
SCHEDA TECNICA
- Tipologia Progetto Restauro Complesso di Casali
- Luogo Cortona – Arezzo
- Committente Privato
- Anno 2014
- Dati dimensionali Immobili ad uso residenziale: 3000 mq circa
- Area di intervento: 5 ettari
Via Raffaele De Cosa, 61, Ostia Lido Roma
TEL. 06-5662844 – 06-96046799







































